Korn12Immo GmbH

BUNGALOW IN iN TRIBUSWINKEL

Objektbeschreibung

TOP – BUNGALOW IN TRIBUSWINKEL!

Wohnen mit Komfort – praktische Raumaufteilung auf einer Ebene zu einem attraktiven Preis von € 258.000,–!

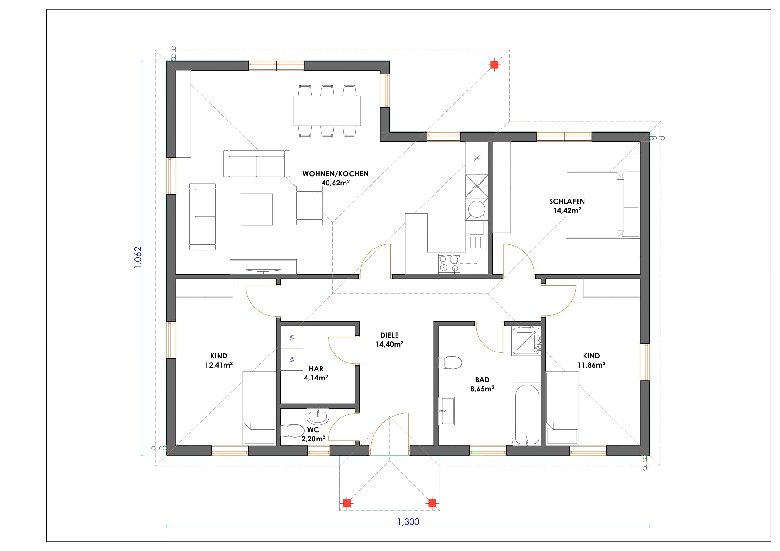
Mit einer Wohnfläche von 108,70 m², bietet dieser Neubau-Bungalow ein modernes Zuhause für kleine Familien oder Paare, die auf Komfort nicht verzichten möchten.

KategorieInfo
Wohnfläche108,70 m²
Preis€ 258.000
ImmobilientypEinfamilienhaus
ZustandNeubau
Zimmer3